






A unique offer for progressive, modern companies is renting an office in Kiev in the only innovation park in Ukraine UNIT.City. Renting office space in UNIT.City is an advantageous location of the office for working in an active business community, where high-quality infrastructure is selected from the best progressive Ukrainian and international companies. One of the most famous and active is UNIT.Factory - an IT school based on the principles of the French School 42, which trains programmers and developers.
At UNIT.City, when renting an office, a significant advantage for you is the unique modern industrial architecture, mobile greening systems, walking areas.
UNIT.City is a full-fledged social infrastructure that includes educational, business, cultural, medical, sports and entertainment facilities. And most importantly, a comfortable space and special services that allow resident companies to fully focus on work and growth. Infrastructure of the park - restaurant, cafeteria, parking, conference rooms, event space, sports complex, retail outlets.
The innovation park has 500,000 square meters of space for business, learning and innovation. We offer you to rent spacious open space offices, club, loft offices, large for the whole floor, rent of buildings for an office, coworking, business campuses, techno-laboratories, accelerators, educational centers. - BC UNIT.City will satisfy the most demanding client.
The BOM ratio is 1.15
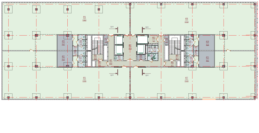
Typical floor area - Building B4 - 790.63 sq.m, building P2 - 730.25 sq.m, building P3 - 1094.8 sq.m
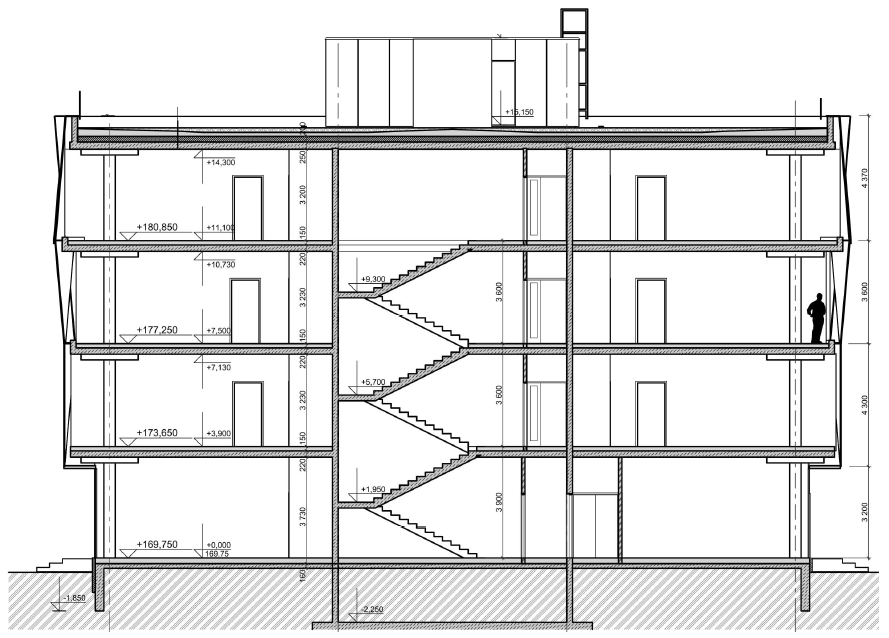
Height of rooms -3,5m
Power of electric networks - the UPS for needs of server rooms. Existence of the diesel generator for needs of systems of safety of fire safety and SCS. Electrical load - 90 watts / sq.m.
Security systems - Round-the-clock security and video surveillance. Security alarm system (SOS). Closing the perimeter, important technical and other premises. Access control system (ACS), a unified system per building. Control of office entrances and premises, entrances to tenants' zones. Turnstiles of entrance group. Electronic pass system. Address fire safety system. Smoke detectors.
Telephony - Fiber optic communication lines
Central heating systems - Heat pumps. Heat recovery of HVAC systems. Facade regulation of heating systems. Frequency control of HVAC systems. Control of air parameters on presence and CO2 sensors.
Ventilation and air conditioning systems - Central ventilation, air conditioning, heating system Simultaneous supply of heat and cold Regulation of microclimate in offices and public areas Heat and cold supply 365 days a year
Existence of elevators - Building B4: 4 elevators 3 - cargo-passenger, loading capacity - 1275 kg, number of passengers - 17 people; 1- cargo, loading capacity is 2000 kg; number of passengers - 26 people. Building P1: 2 elevators 1 - cargo-passenger, loading capacity - 430 kg .; 1- cargo-passenger, loading capacity - 630 kg
Parking - Large parking. Parking coefficient - 3.0 parking spaces per 100 sq.m. leased space. The average parking coefficient for the city of Kiev. - 1.2 parking spaces per 100 sq.m. leased area.
Access to the building - 24/7
Utility costs payable - Electricity, water, heat and cold
Term of lease agreements - from 3 years

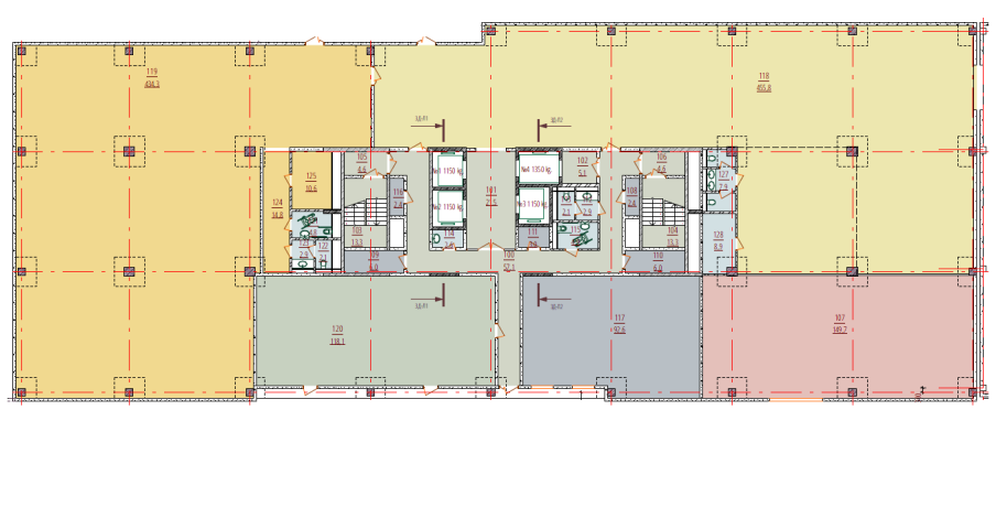
Площадь 1610 кв.м

Площадь 1432 кв.м

Площадь 1454 кв.м.

Типовой план здания В4
